Zpět Zpět na výpis nemovitostí

Prodej bytu 2+kk 43 m², V. Volfa, České Budějovice-České Budějovice 2

V. Volfa, České Budějovice Zobrazit na mapě Zobrazit na mapě

Stav

Realizováno

Typ

2+kk

Obytná plocha

43 m2

Stav objektu

Před rekonstrukcí

Stavba

Panelová

Vlastnictví

Družstevní

2 990 000 Kč

Pohlídejte si cenu této nemovitosti Pohlídejte si cenu této nemovitosti

Sledovat dostupnost

Upozornění

Pohlídejte si změny u této nemovitosti

Dáme vám vědět, ať už se změní cena nebo stav nemovitosti.

Upozornění

O vaše data je u nás postaráno. Přečtěte si naše podmínky pro ochranu os. údajů.

Kalkulačka financování Kalkulačka financování

Spočítejte si, na kolik vás vyjde hypotéka

Spočítejte si, na kolik vás vyjde hypotéka

Spočítejte si, na kolik vás vyjde hypotéka

Nějaký zajímavý podnadpis

Více o této nemovitosti

Prodej bytu 2+kk s lodžií, V. Volfa, České Budějovice
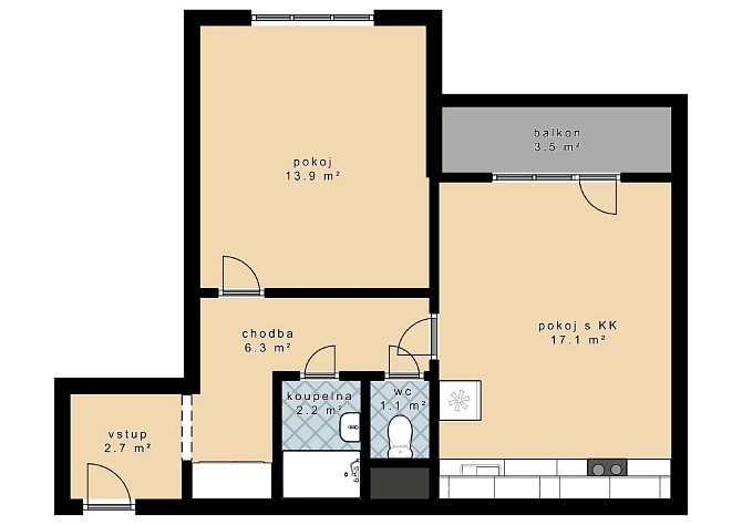
Nabízíme k prodeji byt o dispozici 2+kk v družstevním vlastnictví, situovaný na adrese V. Volfa 15, České Budějovice. Byt se nachází ve vyhledávané a klidné lokalitě s výbornou dostupností do centra města a kompletní občanskou vybaveností v bezprostředním okolí.
Byt je v původním, avšak pečlivě udržovaném stavu, což představuje ideální příležitost pro nové majitele, kteří si chtějí bydlení upravit dle vlastních představ a potřeb. Dispozice 2+kk nabízí útulný obývací prostor s kuchyňským koutem, ložnici a prakticky řešené zázemí bytu.
Součástí bytu je lodžie, která poskytuje příjemné místo pro ranní kávu či večerní posezení, a dále sklep, jenž nabízí dostatek úložného prostoru pro sezónní věci nebo sportovní vybavení.
Velkou výhodou jsou nízké měsíční náklady na bydlení, které se pohybují přibližně do 3.000 Kč ( bez el. energie a plynu ), díky čemuž je byt finančně velmi dostupný nejen pro vlastní bydlení, ale i jako investice.
Lokalita nabízí kompletní občanskou vybavenost v docházkové vzdálenosti – mateřskou školu, základní školu, střední i vysokou školu, obchody s potravinami, nákupní centrum, poštu, zdravotní středisko, restaurace, kavárny i multikino. Výborná je také dopravní dostupnost, v blízkosti se nachází zastávky MHD s rychlým spojením do centra města. Motoristé ocení snadný nájezd na hlavní silniční tahy.
Okolí domu doplňují zelené plochy, parky, cyklostezky a možnosti volnočasových aktivit, které vybízejí k odpočinku i aktivnímu trávení volného času.
Tento byt je ideální volbou pro jednotlivce, páry, menší rodinu nebo investory, kteří hledají klidné městské bydlení s možností úprav dle vlastního vkusu, nízkými provozními náklady a veškerými službami na dosah.
Majitel si vyhrazuje právo výběru kupujícího. Pro komunikaci uvádějte evidenční číslo zakázky N115836.

Lokalita

Ulice

V. Volfa

Informace o nemovitosti

Stav

Realizováno

Typ smlouvy

Prodej

Typ nemovitosti

Byt

Technické informace

Obytná plocha

43 m2

Příslušenství

Další informace

Typ

2+kk

Stav objektu

Před rekonstrukcí

Stavba

Panelová

Vlastnictví

Družstevní

Energetická náročnost budovy

G - Mimořádně nehospodárná

Sklep

Ano

Lodžie

Ano

Navigovat k nemovitosti Navigovat k nemovitosti

Máte zájem o tuto nemovitost?

Kontaktujte mě a domluvme se na prohlídce

Dejte nám vědět, s čím vám můžeme pomoct

Osobně s vámi projdeme každý detail

Preferovaný den prohlídky

Preferovaný čas prohlídky

Nejpozději do 24 hodin se ozveme nazpátek.

O vaše data je u nás postaráno. Přečtěte si naše podmínky pro ochranu os. údajů.

Děkujeme za váš zájem

Vaše informace jsme přijali a brzy se vám ozveme.

Váš požadavek byl úspěšně odeslán

Dejte nám vědět, s čím vám můžeme pomoct

Osobně s vámi projdeme každý detail

Podobné nemovitosti v naší nabídce

Mohlo by vás také zaujmout

Prodáno
Detail nemovitosti
Volný
Detail nemovitosti
Volný
Detail nemovitosti
Volný
Detail nemovitosti
Prodáno
Detail nemovitosti
Prodáno
Detail nemovitosti
Prodáno
Detail nemovitosti

Prodej bytu 3+1 79 m², Ant. Barcala, České Budějovice-České Budějovice 2

Ulice Ant. Barcala, České Budějovice

Cena na vyžádání
Prodáno
Detail nemovitosti
Prodáno
Detail nemovitosti
Realizováno
Detail nemovitosti
Realizováno
Detail nemovitosti
Prodáno
Detail nemovitosti
Realizováno
Detail nemovitosti

Prodej bytu 2+kk 108 m², Rudolfovská tř., České Budějovice-České Budějovice 6

Ulice Rudolfovská tř., České Budějovice

Cena na vyžádání
Profesionální přístup

Profesionální přístup

Vsaďte na jistotu. Náš sehraný tým lokálních expertů disponuje bohatými zkušenostmi, které zaručují hladký průběh vašeho obchodu. Jsme tu pro vás, abychom hájili vaše zájmy a dosáhli nejlepšího možného výsledku.

Kompletně bez starostí

Kompletně bez starostí

Přenechte veškeré starosti nám. Od prodeje a odhadů, přes správu nemovitostí, zajištění dokumentace (pasporty, PENB), právní servis až po profesionální marketing, rekonstrukce či oddlužení. Vy jen sledujete, jak se vaše cíle plní.

Developerské projekty

Developerské projekty

Investujte chytře a bydlete podle svých představ. Představujeme vám atraktivní developerské projekty, které přináší nejen kvalitní bydlení, ale i zajímavé investiční příležitosti. Naší prioritou je zodpovědný přístup k investorům i budoucím majitelům.

Součást sítě NEXT reality

Součást sítě NEXT reality

Síla celorepublikového hráče na vaší straně. Jako součást největší české realitní kanceláře NEXT reality vám otevíráme dveře k síti více než 300 spolupracujících makléřů po celé ČR. Vaše nemovitost tak získá maximální dosah.