Zpět Zpět na výpis nemovitostí

Prodej bytu 3+1 84 m², Žižkova, Husinec

Žižkova, Husinec Zobrazit na mapě Zobrazit na mapě

Stav

Volný

Typ

3+1

Obytná plocha

84 m2

Stav objektu

Velmi dobrý

Stavba

Smíšená

Vlastnictví

Osobní

3 200 000 Kč

Pohlídejte si cenu této nemovitosti Pohlídejte si cenu této nemovitosti

Sledovat dostupnost

Upozornění

Pohlídejte si změny u této nemovitosti

Dáme vám vědět, ať už se změní cena nebo stav nemovitosti.

Upozornění

O vaše data je u nás postaráno. Přečtěte si naše podmínky pro ochranu os. údajů.

Kalkulačka financování Kalkulačka financování

Spočítejte si, na kolik vás vyjde hypotéka

Spočítejte si, na kolik vás vyjde hypotéka

Spočítejte si, na kolik vás vyjde hypotéka

Nějaký zajímavý podnadpis

Více o této nemovitosti

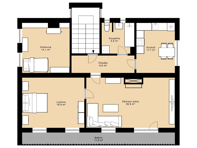
Nabízíme k prodeji prostorný a světlý byt 3+1 o výměře 84 m2 v 1. patře rodinného domu v klidné části centra Husince s jižně orientovanou terasou, která nabízí výhled do zahrady. Dispozice je velmi dobře řešená pro rodinné bydlení, domácí kancelář nebo kombinaci více funkcí.

Byt je vytápěn moderním plynovým kotlem a doplněn krbovými kamny, což přispívá k příjemné atmosféře i nižším nákladům.

Byt je vhodný k vlastnímu bydlení či k dlouhodobému pronájmu nebo bydlení pro seniory i studenty.

Dům je napojen na obecní vodovod, kanalizaci, elektřinu i plyn a je ve velmi dobrém technickém stavu, bez nutnosti zásadních úprav.

Součástí prodeje je podíl na kaskádovitě řešené zahradě o výměře 562 m2 s travnatou plochou, ovocnými stromy a místem pro posezení. Součástí zahrady je také krytá terasa s krbem, ideální pro odpočinek i grilování. Na zahradě se nachází zahradní domek, který lze využít jako dílničku, ateliér nebo ubytování pro hosty. Zahrada nabízí klid, soukromí a prostor pro vaši kreativitu.

Obec Husinec nabízí kompletní občanskou vybavenost – mateřskou a základní školu, poštu, obchody, restaurace i další služby.
Výborná dopravní dostupnost do Prachatic a okolních měst zaručuje pohodlné spojení i klidné bydlení v příjemném prostředí historické jihočeské obce.

Nemovitost je možné financovat prostřednictvím hypotečního úvěru. Nezávazně Vám připravíme nabídku financování. Pouze u nás získáte moderní financování až na 35 let, bez ohledu na věk a prokazování příjmů, nebo nutnosti předkládat daňové přiznání (u podnikatelů). Pro komunikaci uvádějte evidenční číslo zakázky N116113.

Lokalita

Ulice

Žižkova

Informace o nemovitosti

Stav

Volný

Typ smlouvy

Prodej

Typ nemovitosti

Byt

Technické informace

Obytná plocha

84 m2

Příslušenství

Další informace

Typ

3+1

Stav objektu

Velmi dobrý

Stavba

Smíšená

Vlastnictví

Osobní

Energetická náročnost budovy

E - Nehospodárná

Navigovat k nemovitosti Navigovat k nemovitosti

Máte zájem o tuto nemovitost?

Kontaktujte mě a domluvme se na prohlídce

Dejte nám vědět, s čím vám můžeme pomoct

Osobně s vámi projdeme každý detail

Preferovaný den prohlídky

Preferovaný čas prohlídky

Nejpozději do 24 hodin se ozveme nazpátek.

O vaše data je u nás postaráno. Přečtěte si naše podmínky pro ochranu os. údajů.

Děkujeme za váš zájem

Vaše informace jsme přijali a brzy se vám ozveme.

Váš požadavek byl úspěšně odeslán

Dejte nám vědět, s čím vám můžeme pomoct

Osobně s vámi projdeme každý detail

Podobné nemovitosti v naší nabídce

Mohlo by vás také zaujmout

Volný
Detail nemovitosti

Prodej bytu 2+1 44 m², Žižkova, Husinec

Ulice Žižkova, Husinec

2 600 000 Kč
Volný
Detail nemovitosti

Prodej bytu 3+1 84 m², Žižkova, Husinec

Ulice Žižkova, Husinec

3 200 000 Kč
Volný
Detail nemovitosti

Prodej bytu 2+1 66 m², Žižkova, Husinec

Ulice Žižkova, Husinec

2 600 000 Kč
Profesionální přístup

Profesionální přístup

Vsaďte na jistotu. Náš sehraný tým lokálních expertů disponuje bohatými zkušenostmi, které zaručují hladký průběh vašeho obchodu. Jsme tu pro vás, abychom hájili vaše zájmy a dosáhli nejlepšího možného výsledku.

Kompletně bez starostí

Kompletně bez starostí

Přenechte veškeré starosti nám. Od prodeje a odhadů, přes správu nemovitostí, zajištění dokumentace (pasporty, PENB), právní servis až po profesionální marketing, rekonstrukce či oddlužení. Vy jen sledujete, jak se vaše cíle plní.

Developerské projekty

Developerské projekty

Investujte chytře a bydlete podle svých představ. Představujeme vám atraktivní developerské projekty, které přináší nejen kvalitní bydlení, ale i zajímavé investiční příležitosti. Naší prioritou je zodpovědný přístup k investorům i budoucím majitelům.

Součást sítě NEXT reality

Součást sítě NEXT reality

Síla celorepublikového hráče na vaší straně. Jako součást největší české realitní kanceláře NEXT reality vám otevíráme dveře k síti více než 300 spolupracujících makléřů po celé ČR. Vaše nemovitost tak získá maximální dosah.