Zpět Zpět na výpis nemovitostí

Prodej bytu 4+kk 92 m², Příčná, Boršov nad Vltavou-Poříčí

Příčná, Boršov nad Vltavou Zobrazit na mapě Zobrazit na mapě

Stav

Volný

Typ

4+kk

Obytná plocha

92 m2

Stav objektu

Novostavba

Stavba

Cihlová

Vlastnictví

Osobní

8 390 000 Kč

Pohlídejte si cenu této nemovitosti Pohlídejte si cenu této nemovitosti

reo_watchdog_modal_header_title

bell

Pohlídejte si změny u této nemovitosti

Dáme vám vědět, ať už se změní cena nebo stav nemovitosti.

bell

O vaše data je u nás postaráno. Přečtěte si naše podmínky pro ochranu os. údajů.

Kalkulačka financování Kalkulačka financování

Spočítejte si, na kolik vás vyjde hypotéka

Spočítejte si, na kolik vás vyjde hypotéka

Spočítejte si, na kolik vás vyjde hypotéka

Nějaký zajímavý podnadpis

Více o této nemovitosti

Pokud toužíte po klidném a pohodlném bydlení se soukromím, zahradou a výbornou dostupností do Českých Budějovic, právě jste našli ideální místo. Exkluzivně vám nabízíme k prodeji nadstandardní bytovou jednotku o dispozici 4kk, která se nachází v oblíbené lokalitě Boršov nad Vltavou, jen pár minut jízdy od centra města.

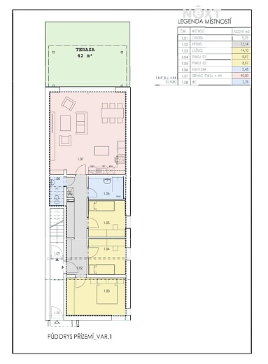
Byt se nachází v přízemí moderního viladomu, který byl kolaudován v květnu 2023. Dům má pouze dvě samostatné bytové jednotky, což zajišťuje maximální soukromí a klid. Celková plocha bytu činí 92 m², součástí prodeje je navíc velkorysá zahrada o výměře 930 m² a zastřešená terasa o ploše 40 m², ideální pro rodinné posezení, grilování nebo relaxaci na čerstvém vzduchu.

Byt nabízí promyšlenou dispozici: světlý a prostorný obývací pokoj s moderní kuchyňskou linkou, tři samostatné ložnice, koupelnu, samostatné WC a předsíň.

Vytápění zajišťuje vlastní plynový kotel s podlahovým topením, které lze samostatně regulovat v jednotlivých místnostech. Byt je napojen na obecní vodovod i kanalizaci.

K bytu náleží parkovací stání přímo před domem, možno vytvořit další na kusu vlastní zahrady. Zahrada je plně oplocená a nabízí dostatek prostoru pro dětské hry, domácí zahradničení nebo jen pohodové trávení času venku. Zastřešená terasa přiléhající k obývacímu pokoji vám zajistí komfortní posezení za každého počasí.

Boršov nad Vltavou je vyhledávanou lokalitou pro ty, kdo chtějí klidné bydlení v dosahu města. Obec disponuje kompletní občanskou vybaveností. Kromě toho zde funguje městská hromadná doprava a pravidelné autobusové spojení do Českých Budějovic. Okolí nabízí krásnou přírodu, cyklostezky, řeku Vltavu i možnosti kulturního a sportovního vyžití.

Nemovitosti lze financovat prostřednictvím hypotečního úvěru. Nezávazně Vám připravíme nabídku možného financování. Pouze u nás vám zajistíme moderní financování až na 35 let, bez ohledu na věk a prokazování příjmů, či nutnosti předkládat daňové přiznání (u podnikatelů). Zeptejte se nás a bydlete chytře! Pro komunikaci uvádějte evidenční číslo zakázky N111164.

Lokalita

Ulice

Příčná

Informace o nemovitosti

Stav

Volný

Typ smlouvy

Prodej

Typ nemovitosti

Byt

Technické informace

Obytná plocha

92 m2

Příslušenství

Další informace

Typ

4+kk

Stav objektu

Novostavba

Stavba

Cihlová

Vlastnictví

Osobní

Energetická náročnost budovy

G - Mimořádně nehospodárná

Parkování

Ano

Terasa

Ano

Navigovat k nemovitosti Navigovat k nemovitosti

Podobné nemovitosti v naší nabídce

Mohlo by vás také zaujmout

Volný
Detail nemovitosti

Prodej bytu 4+kk 92 m², Příčná, Boršov nad Vltavou-Poříčí

Ulice Příčná, Boršov nad Vltavou

8 390 000 Kč
Profesionální přístup

Profesionální přístup

Vsaďte na jistotu. Náš sehraný tým lokálních expertů disponuje bohatými zkušenostmi, které zaručují hladký průběh vašeho obchodu. Jsme tu pro vás, abychom hájili vaše zájmy a dosáhli nejlepšího možného výsledku.

Kompletně bez starostí

Kompletně bez starostí

Přenechte veškeré starosti nám. Od prodeje a odhadů, přes správu nemovitostí, zajištění dokumentace (pasporty, PENB), právní servis až po profesionální marketing, rekonstrukce či oddlužení. Vy jen sledujete, jak se vaše cíle plní.

Developerské projekty

Developerské projekty

Investujte chytře a bydlete podle svých představ. Představujeme vám atraktivní developerské projekty, které přináší nejen kvalitní bydlení, ale i zajímavé investiční příležitosti. Naší prioritou je zodpovědný přístup k investorům i budoucím majitelům.

Součást sítě NEXT reality

Součást sítě NEXT reality

Síla celorepublikového hráče na vaší straně. Jako součást největší české realitní kanceláře NEXT reality vám otevíráme dveře k síti více než 300 spolupracujících makléřů po celé ČR. Vaše nemovitost tak získá maximální dosah.