Zpět Zpět na výpis nemovitostí

Prodej komerčních prostor ubytování 228 m², Chlum u Třeboně,Jindřichův Hradec,Jihočeský kraj

Chlum u Třeboně,Jindřichův Hradec,Jihočeský kraj Zobrazit na mapě Zobrazit na mapě

Stav

Prodáno

Typ

Ubytování

Obytná plocha

228 m2

Stav objektu

Dobrý

Stavba

Cihlová

Typ domu

Přízemní

Cena na vyžádání

Pohlídejte si cenu této nemovitosti Pohlídejte si cenu této nemovitosti

reo_watchdog_modal_header_title

bell

Pohlídejte si změny u této nemovitosti

Dáme vám vědět, ať už se změní cena nebo stav nemovitosti.

bell

O vaše data je u nás postaráno. Přečtěte si naše podmínky pro ochranu os. údajů.

Kalkulačka financování Kalkulačka financování

Spočítejte si, na kolik vás vyjde hypotéka

Spočítejte si, na kolik vás vyjde hypotéka

Spočítejte si, na kolik vás vyjde hypotéka

Nějaký zajímavý podnadpis

Více o této nemovitosti

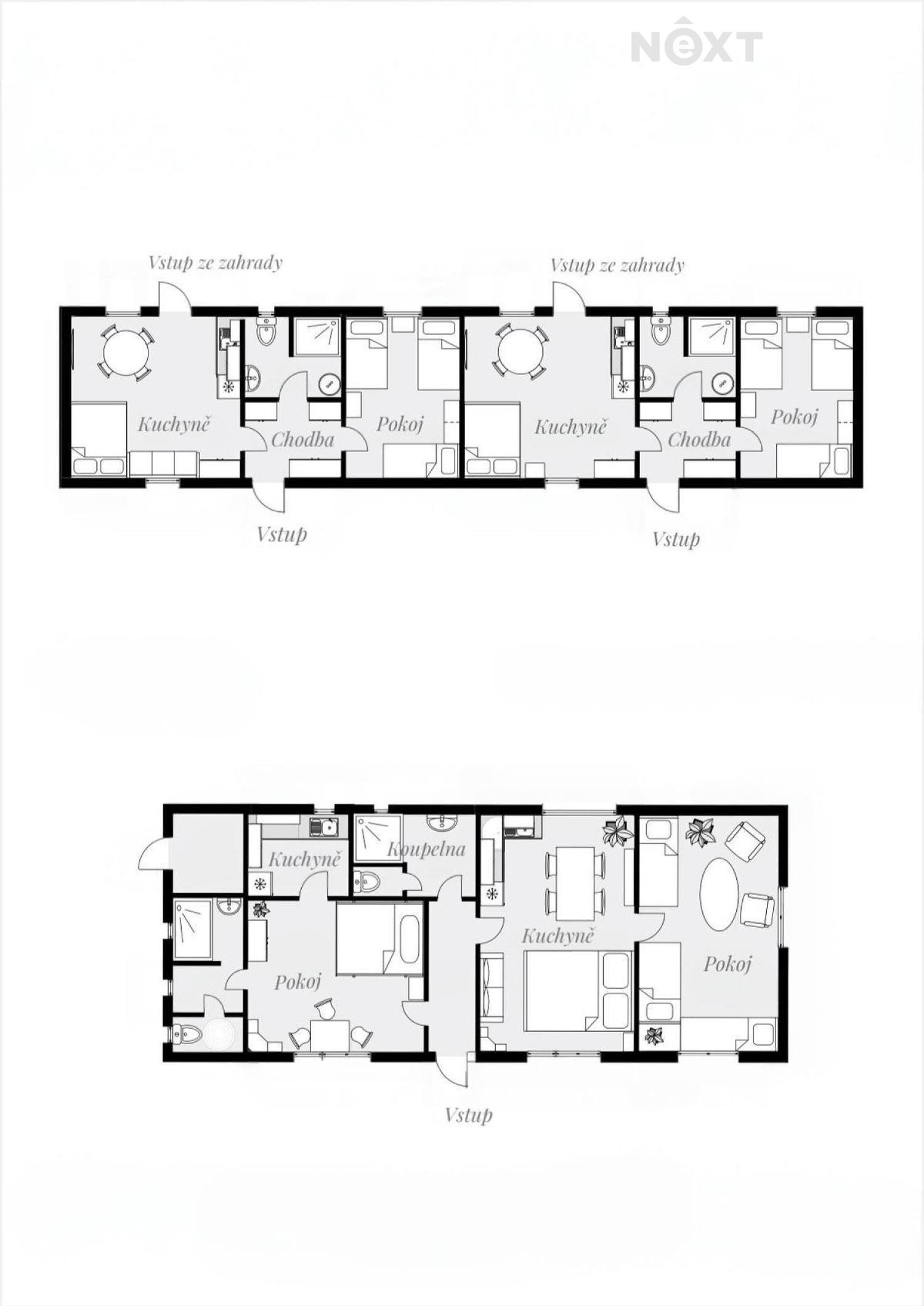
Nabízíme k prodeji jedinečnou rekreační nemovitost v atraktivní lokalitě jihočeského městečka Chlum u Třeboně, která se skládá ze dvou samostatných budov. První budova (121 m2) obsahuje tři plně vybavené apartmány, druhá budova (107 m2) nabízí jeden samostatný apartmán. Nemovitost je ideální pro vlastní rekreaci i jako zajímavá investiční příležitost – apartmány jsou dlouhodobě využívány k pronájmu a generují stabilní příjem. Nemovitost není evidována pod číslem popisným ani evidenčním, přesto je napojena na veškeré inženýrské sítě – vodovod, kanalizaci i elektřinu. Celková plocha pozemku činí 997 m². K dispozici je parkování na vlastním pozemku, který dále nabízí pergolu k posezení a prostor pro relaxaci či grilování. Celý areál je udržovaný, poskytuje dostatek soukromí a klidu. Chlum u Třeboně se nachází v srdci Třeboňska, v krajině rybníků a lesů, jen pár minut od Státního zámku Třeboň nebo CHKO Třeboňsko. Oblast je velmi oblíbená mezi rekreanty pro cyklostezky, koupání, rybaření i houbaření. V obci je kompletní občanská vybavenost – obchody, restaurace, pošta, lékař, základní i mateřská škola. V letní sezóně zde probíhá řada kulturních a společenských akcí, což přispívá k vysoké návštěvnosti a zájmu o ubytování. Tato nemovitost je ideální volbou pro ty, kdo hledají kombinaci klidné rekreační oblasti a podnikatelského záměru. Pro komunikaci uvádějte evidenční číslo zakázky N112235.

Informace o nemovitosti

Stav

Prodáno

Typ smlouvy

Prodej

Typ nemovitosti

Komerční

Technické informace

Obytná plocha

228 m2

Příslušenství

Další informace

Typ

Ubytování

Stav objektu

Dobrý

Stavba

Cihlová

Typ domu

Přízemní

Navigovat k nemovitosti Navigovat k nemovitosti

Máte zájem o tuto nemovitost?

Kontaktujte mě a domluvme se na prohlídce

Dejte nám vědět, s čím vám můžeme pomoct

Osobně s vámi projdeme každý detail

Preferovaný den prohlídky

Preferovaný čas prohlídky

Nejpozději do 24 hodin se ozveme nazpátek.

O vaše data je u nás postaráno. Přečtěte si naše podmínky pro ochranu os. údajů.

Děkujeme za váš zájem

Vaše informace jsme přijali a brzy se vám ozveme.

Váš požadavek byl úspěšně odeslán

Dejte nám vědět, s čím vám můžeme pomoct

Osobně s vámi projdeme každý detail

Podobné nemovitosti v naší nabídce

Mohlo by vás také zaujmout

Prodáno
Detail nemovitosti

Prodej komerčních prostor ubytování 228 m², Chlum u Třeboně,Jindřichův Hradec,Jihočeský kraj

Ulice Chlum u Třeboně,Jindřichův Hradec,Jihočeský kraj

Cena na vyžádání
Profesionální přístup

Profesionální přístup

Vsaďte na jistotu. Náš sehraný tým lokálních expertů disponuje bohatými zkušenostmi, které zaručují hladký průběh vašeho obchodu. Jsme tu pro vás, abychom hájili vaše zájmy a dosáhli nejlepšího možného výsledku.

Kompletně bez starostí

Kompletně bez starostí

Přenechte veškeré starosti nám. Od prodeje a odhadů, přes správu nemovitostí, zajištění dokumentace (pasporty, PENB), právní servis až po profesionální marketing, rekonstrukce či oddlužení. Vy jen sledujete, jak se vaše cíle plní.

Developerské projekty

Developerské projekty

Investujte chytře a bydlete podle svých představ. Představujeme vám atraktivní developerské projekty, které přináší nejen kvalitní bydlení, ale i zajímavé investiční příležitosti. Naší prioritou je zodpovědný přístup k investorům i budoucím majitelům.

Součást sítě NEXT reality

Součást sítě NEXT reality

Síla celorepublikového hráče na vaší straně. Jako součást největší české realitní kanceláře NEXT reality vám otevíráme dveře k síti více než 300 spolupracujících makléřů po celé ČR. Vaše nemovitost tak získá maximální dosah.