Zpět Zpět na výpis nemovitostí

Prodej komerčních prostor výroba 786 m², Hluboká nad Vltavou-Bavorovice

Hluboká nad Vltavou

Stav

Realizováno

Typ

Výroba

Obytná plocha

786 m2

Stav objektu

Velmi dobrý

Stavba

Cihlová

Typ domu

Přízemní

Cena na vyžádání

Pohlídejte si cenu této nemovitosti Pohlídejte si cenu této nemovitosti

Sledovat dostupnost

Upozornění

Pohlídejte si změny u této nemovitosti

Dáme vám vědět, ať už se změní cena nebo stav nemovitosti.

Upozornění

O vaše data je u nás postaráno. Přečtěte si naše podmínky pro ochranu os. údajů.

Kalkulačka financování Kalkulačka financování

Spočítejte si, na kolik vás vyjde hypotéka

Spočítejte si, na kolik vás vyjde hypotéka

Spočítejte si, na kolik vás vyjde hypotéka

Nějaký zajímavý podnadpis

Více o této nemovitosti

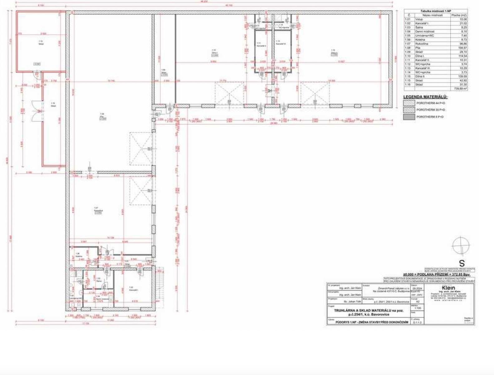
Nabízíme k prodeji novostavbu polyfunkčního objektu, nacházející se v okrajové části města Hluboká nad Vltavou – Bavorovice, v klidné smíšené zástavbě s výbornou dostupností do Českých Budějovic (cca 10 minut jízdy).

Objekt je plně pronajatý a provozně osazený, což z něj činí stabilní a okamžitě výnosnou investici. V 1. nadzemním podlaží se nachází výrobní, skladovací a kancelářské prostory o celkové užitné ploše cca 740 m², ve 2. nadzemním podlaží je umístěna bytová jednotka 2+kk o výměře cca 46 m². Celková výměra pozemků činí 3 178 m².

Součástí nemovitosti jsou zpevněné manipulační a parkovací plochy, částečné oplocení, terénní úpravy a kompletní přípojky inženýrských sítí. Objekt je ve velmi dobrém technickém stavu, disponuje vlastním zdrojem vody a vytápěním zajištěným kotlem na tuhá paliva, což přináší nižší provozní náklady a nezávislost na dodavatelích energií. Nemovitost umožňuje rozdělení na více samostatných provozních jednotek, čímž se dále zvyšuje flexibilita i výnosový potenciál.

Velkou výhodou je výborná dopravní dostupnost – v docházkové vzdálenosti se nachází vlaková zastávka Hluboká nad Vltavou, k dispozici je také autobusové spojení a rychlé napojení na hlavní silniční tahy směrem na České Budějovice.

Nemovitost je vhodná jako dlouhodobá investice s dobrým výnosem, případně pro kombinaci vlastního podnikání a pronájmu.
Více informací na telefonu. Pro komunikaci uvádějte evidenční číslo zakázky N116085.

Informace o nemovitosti

Stav

Realizováno

Typ smlouvy

Prodej

Typ nemovitosti

Komerční

Technické informace

Obytná plocha

786 m2

Příslušenství

Garáž

Ano

Další informace

Typ

Výroba

Stav objektu

Velmi dobrý

Stavba

Cihlová

Typ domu

Přízemní

Parkování

Ano

Máte zájem o tuto nemovitost?

Kontaktujte mě a domluvme se na prohlídce

Dejte nám vědět, s čím vám můžeme pomoct

Osobně s vámi projdeme každý detail

Preferovaný den prohlídky

Preferovaný čas prohlídky

Nejpozději do 24 hodin se ozveme nazpátek.

O vaše data je u nás postaráno. Přečtěte si naše podmínky pro ochranu os. údajů.

Děkujeme za váš zájem

Vaše informace jsme přijali a brzy se vám ozveme.

Váš požadavek byl úspěšně odeslán

Dejte nám vědět, s čím vám můžeme pomoct

Osobně s vámi projdeme každý detail

Podobné nemovitosti v naší nabídce

Mohlo by vás také zaujmout

Realizováno
Detail nemovitosti
Profesionální přístup

Profesionální přístup

Vsaďte na jistotu. Náš sehraný tým lokálních expertů disponuje bohatými zkušenostmi, které zaručují hladký průběh vašeho obchodu. Jsme tu pro vás, abychom hájili vaše zájmy a dosáhli nejlepšího možného výsledku.

Kompletně bez starostí

Kompletně bez starostí

Přenechte veškeré starosti nám. Od prodeje a odhadů, přes správu nemovitostí, zajištění dokumentace (pasporty, PENB), právní servis až po profesionální marketing, rekonstrukce či oddlužení. Vy jen sledujete, jak se vaše cíle plní.

Developerské projekty

Developerské projekty

Investujte chytře a bydlete podle svých představ. Představujeme vám atraktivní developerské projekty, které přináší nejen kvalitní bydlení, ale i zajímavé investiční příležitosti. Naší prioritou je zodpovědný přístup k investorům i budoucím majitelům.

Součást sítě NEXT reality

Součást sítě NEXT reality

Síla celorepublikového hráče na vaší straně. Jako součást největší české realitní kanceláře NEXT reality vám otevíráme dveře k síti více než 300 spolupracujících makléřů po celé ČR. Vaše nemovitost tak získá maximální dosah.