Zpět Zpět na výpis nemovitostí

Prodej pozemku bydlení pozemek 1348 m², Žabovřesky,České Budějovice,Jihočeský kraj

Žabovřesky Zobrazit na mapě Zobrazit na mapě

Stav

Realizováno

Typ

Bydlení

Plocha pozemku

1348

4 490 000 Kč

Pohlídejte si cenu této nemovitosti Pohlídejte si cenu této nemovitosti

Sledovat dostupnost

Upozornění

Pohlídejte si změny u této nemovitosti

Dáme vám vědět, ať už se změní cena nebo stav nemovitosti.

Upozornění

O vaše data je u nás postaráno. Přečtěte si naše podmínky pro ochranu os. údajů.

Kalkulačka financování Kalkulačka financování

Spočítejte si, na kolik vás vyjde hypotéka

Spočítejte si, na kolik vás vyjde hypotéka

Spočítejte si, na kolik vás vyjde hypotéka

Nějaký zajímavý podnadpis

Více o této nemovitosti

Prodej stavebního pozemku 1 348 m² – Žabovřesky u Českých Budějovic
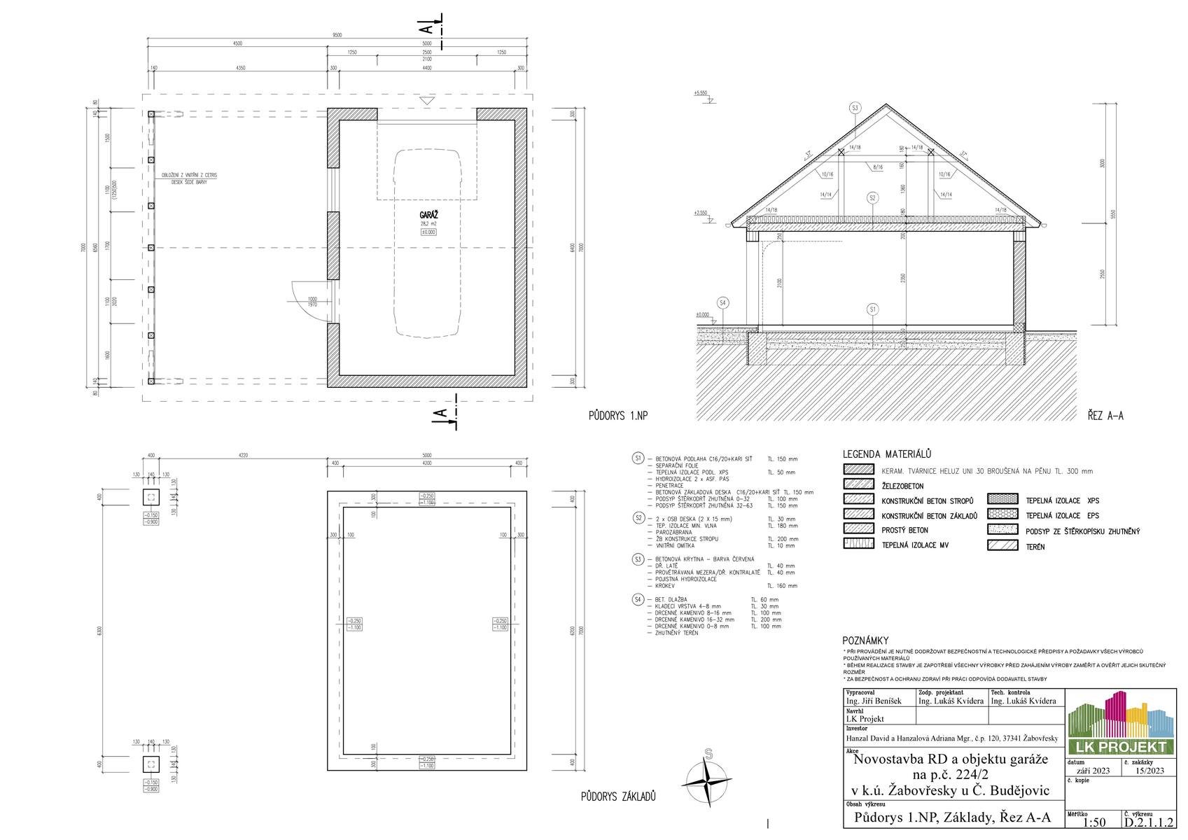
Nabízíme k prodeji atraktivní stavební pozemek o výměře 1 348 m² v obci Žabovřesky, která se nachází v těsné blízkosti Českých Budějovic. Pozemek je dle platného územního plánu určen k výstavbě rodinného s maximální zastavěností 35 %, což poskytuje dostatek prostoru nejen pro samotnou stavbu, ale i pro zahradu a další zázemí.
Velkou výhodou této nabídky je skutečnost, že na pozemek je k dispozici zpracovaný stavební projekt rodinného domu včetně garážového stání. V přední části pozemku se nachází kaplička na elektřinu, v přístupové komunikaci je připravena přípojka na vodu. Odpadní vody jsou dle regulativu řešeny vlastní čističkou odpadních vod. Na konci pozemku je příprava pro kolektory na tepelné čerpadlo, což výrazně snižuje budoucí náklady na vytápění a zvyšuje energetickou efektivitu domu.
Obec Žabovřesky je dlouhodobě vyhledávanou lokalitou pro klidné rodinné bydlení s výbornou dostupností krajského města. Českých Budějovic jsou 10 minut jízdy autem. Obec i její okolí nabízí základní občanskou vybavenost, obchody, služby, mateřské a základní školy v dostupné vzdálenosti, restaurace a dobré dopravní spojení. Milovníci aktivního života ocení blízkou přírodu, cyklostezky a možnosti pro relaxaci i sport.
Tento pozemek je ideální volbou pro ty, kteří hledají kvalitní bydlení v klidném prostředí s rychlým napojením na město, případně jako zajímavou investiční příležitost. Pro komunikaci uvádějte evidenční číslo zakázky N116036.

Lokalita

Ulice

Informace o nemovitosti

Stav

Realizováno

Typ smlouvy

Prodej

Typ nemovitosti

Pozemky

Příslušenství

Další informace

Typ

Bydlení

Plocha pozemku

1348

Navigovat k nemovitosti Navigovat k nemovitosti

Máte zájem o tuto nemovitost?

Kontaktujte mě a domluvme se na prohlídce

Dejte nám vědět, s čím vám můžeme pomoct

Osobně s vámi projdeme každý detail

Preferovaný den prohlídky

Preferovaný čas prohlídky

Nejpozději do 24 hodin se ozveme nazpátek.

O vaše data je u nás postaráno. Přečtěte si naše podmínky pro ochranu os. údajů.

Děkujeme za váš zájem

Vaše informace jsme přijali a brzy se vám ozveme.

Váš požadavek byl úspěšně odeslán

Dejte nám vědět, s čím vám můžeme pomoct

Osobně s vámi projdeme každý detail

Podobné nemovitosti v naší nabídce

Mohlo by vás také zaujmout

Profesionální přístup

Profesionální přístup

Vsaďte na jistotu. Náš sehraný tým lokálních expertů disponuje bohatými zkušenostmi, které zaručují hladký průběh vašeho obchodu. Jsme tu pro vás, abychom hájili vaše zájmy a dosáhli nejlepšího možného výsledku.

Kompletně bez starostí

Kompletně bez starostí

Přenechte veškeré starosti nám. Od prodeje a odhadů, přes správu nemovitostí, zajištění dokumentace (pasporty, PENB), právní servis až po profesionální marketing, rekonstrukce či oddlužení. Vy jen sledujete, jak se vaše cíle plní.

Developerské projekty

Developerské projekty

Investujte chytře a bydlete podle svých představ. Představujeme vám atraktivní developerské projekty, které přináší nejen kvalitní bydlení, ale i zajímavé investiční příležitosti. Naší prioritou je zodpovědný přístup k investorům i budoucím majitelům.

Součást sítě NEXT reality

Součást sítě NEXT reality

Síla celorepublikového hráče na vaší straně. Jako součást největší české realitní kanceláře NEXT reality vám otevíráme dveře k síti více než 300 spolupracujících makléřů po celé ČR. Vaše nemovitost tak získá maximální dosah.